1938 Golfview Drive 1938, TARPON SPRINGS, FL 34689
Active
Property Photos
Would you like to sell your home before you purchase this one?
Priced at Only: $199,900
For more Information Call:
Address: 1938 Golfview Drive 1938, TARPON SPRINGS, FL 34689
Property Location and Similar Properties
- MLS#: TB8470029 ( Residential )
- Street Address: 1938 Golfview Drive 1938
- Viewed: 1
- Price: $199,900
- Price sqft: $178
- Waterfront: No
- Year Built: 1986
- Bldg sqft: 1125
- Bedrooms: 2
- Total Baths: 2
- Full Baths: 2
- Garage / Parking Spaces: 1
- Days On Market: 1
- Additional Information
- Geolocation: 28.135 / -82.7612
- County: PINELLAS
- City: TARPON SPRINGS
- Zipcode: 34689
- Subdivision: Green Dolphin Park Midrise Con
- Building: Green Dolphin Park Midrise Condo
- Elementary School: Sunset Hills
- Middle School: Tarpon Springs
- High School: Tarpon Springs
- Provided by: BHHS FLORIDA PROPERTIES GROUP
- Contact: Chuck Bachteler, Jr
- 727-799-2227

- DMCA Notice
-
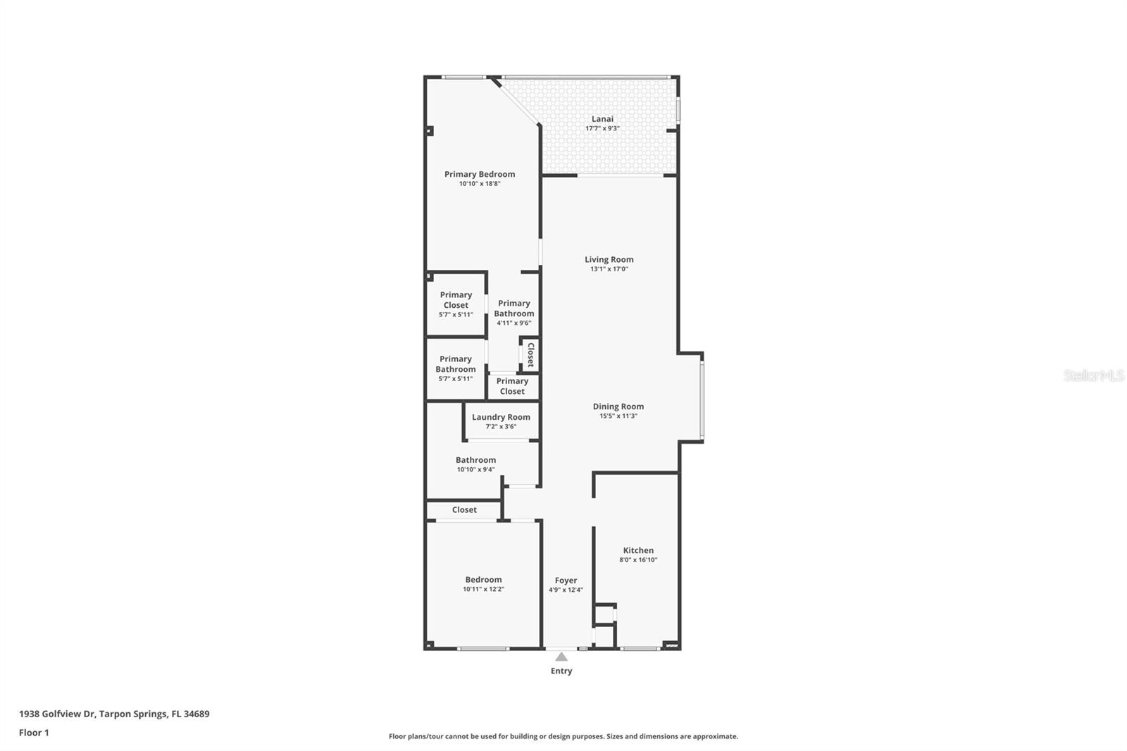
DescriptionDiscover easy, low maintenance living in the desirable 55+ Green Dolphin community. This 2 bedroom, 2 bath third floor corner unit condo offers sweeping golf course views and a bright, open layout filled with natural light. The unit remains all original, providing an excellent opportunity for cosmetic updates, while major mechanicals are already in place with the A/C system and hot water heater replaced in 2019. The open living and dining areas flow to a screened lanai, accessible from both the living room and owner?s suite, overlooking the lush fairways. The split bedroom layout offers privacy, with a spacious guest bedroom near a full bath, and an owner's suite featuring lanai access, a walk in closet, and ensuite bath. A full size washer and dryer add everyday convenience. Green Dolphin offers resort style amenities including a clubhouse, fitness center, pool, tennis and pickleball courts, shuffleboard, and more. HOA fees include cable, high speed internet, water, trash, exterior maintenance, elevators, and amenities. Under building parking with storage plus ample guest parking. Ideally located near the Tarpon Springs Sponge docks.
Payment Calculator
- Principal & Interest -
- Property Tax $
- Home Insurance $
- HOA Fees $
- Monthly -
For a Fast & FREE Mortgage Pre-Approval
Apply Now
Apply NowFeatures
Building and Construction
- Covered Spaces: 0.00
- Exterior Features: Balcony, Sidewalk, Sliding Doors, Storage, Tennis Court(s)
- Flooring: Carpet, Tile
- Living Area: 1125.00
- Roof: Built-Up, Membrane
Property Information
- Property Condition: Completed
School Information
- High School: Tarpon Springs High-PN
- Middle School: Tarpon Springs Middle-PN
- School Elementary: Sunset Hills Elementary-PN
Garage and Parking
- Garage Spaces: 1.00
- Open Parking Spaces: 0.00
- Parking Features: Assigned, Covered, Ground Level, Guest, Reserved, Basement
Eco-Communities
- Pool Features: Gunite, In Ground
- Water Source: Public
Utilities
- Carport Spaces: 0.00
- Cooling: Central Air
- Heating: Central, Electric
- Pets Allowed: Yes
- Sewer: Public Sewer
- Utilities: Cable Connected, Electricity Connected, Sewer Connected, Underground Utilities, Water Connected
Finance and Tax Information
- Home Owners Association Fee Includes: Cable TV, Common Area Taxes, Pool, Escrow Reserves Fund, Insurance, Internet, Maintenance Structure, Maintenance Grounds, Management, Recreational Facilities, Sewer, Trash, Water
- Home Owners Association Fee: 0.00
- Insurance Expense: 0.00
- Net Operating Income: 0.00
- Other Expense: 0.00
- Tax Year: 2025
Other Features
- Appliances: Dishwasher, Disposal, Dryer, Electric Water Heater, Microwave, Range, Range Hood, Refrigerator, Washer
- Association Name: Ameritech/Scott Vignery
- Association Phone: 727-726-8000
- Country: US
- Furnished: Unfurnished
- Interior Features: Ceiling Fans(s), Eat-in Kitchen, Living Room/Dining Room Combo, Primary Bedroom Main Floor, Solid Surface Counters, Thermostat, Walk-In Closet(s), Window Treatments
- Legal Description: GREEN DOLPHIN PARK MID-RISE CONDO PHASE III BLDG 1900, UNIT 1938
- Levels: One
- Area Major: 34689 - Tarpon Springs
- Occupant Type: Vacant
- Parcel Number: 13-27-15-33287-003-1938
- Possession: Close Of Escrow
- Style: Florida
- Unit Number: 1938
- View: Golf Course
- Zoning Code: 0430/CONDO
Similar Properties
Nearby Subdivisions
Green Dolphin Park Condo
Green Dolphin Park Mid-rise Co
Green Dolphin Park Midrise Con
Green Dolphin Park Villas Cond
Gulf Front Lagoon Condo
Island Club Of Tarpon
Lake Tarpon Sail Tennis Club
Mariner Village Northwest Cond
Moorings The Condo
North Village Condo
Palms Of Tarpon Spgs The Condo
Seascape Condo Of Tarpon Spgs
Sunset Shores Of Tarpon A Cond
Tarpon Cove Condo
Tarpon Point Condo
Villa Plumosa Condo
Windrush Bay Condo
Windrush North Iii Condo
Windrush Northii Condo
Woods At Anderson Park Condo T

















































